Skip to main content
  • ConceptWall 86 Fassaden - Office building Höfdatorg ansässig in Reykjavik, Island
  • ConceptWall 86 Fassaden - Office building Höfdatorg ansässig in Reykjavik, Island
  • ConceptWall 86 Fassaden - Office building Höfdatorg ansässig in Reykjavik, Island
  • ConceptWall 86 Fassaden - Office building Höfdatorg ansässig in Reykjavik, Island
  • LWW Architekten
  • PK -Arkitektar

Höfdatorg

Reykjavik - Island - 2009

Das zweitgrößte Gebäude in Reykjavik ist Bestandteil eines ehrgeizigen Projekts, das durch eine elegante, optimistische und strahlende Architektur einen Gegenpol zu dem rauen Klima des Landes bilden soll. Diese Architektur steht nicht nur im Kontrast zu den Witterungsbedingungen in Island, sondern auch zu dem wirtschaftlichen Klima, in dem der Turm geschaffen wurde. Die Pläne entstanden in den Jahren des Wohlstands, aber der Bau selbst erfolgte im wirtschaftlich dramatischen Jahr 2008, als das ganze Ausmaß der Finanzkrise deutlich wurde.

Der Turm ist ein Bestandteil von Höfðatorg, einem Komplex, der nur einen Steinwurf von Höfði entfernt ist, der Villa, in der sich Ronald Reagan und Michael Gorbatschow 1986 zur Beratung über den Abbau ihrer Atomraketen getroffen haben. Der 70 Meter hohe Turm mit seinen 19 Stockwerken ist eines von sechs Gebäuden des Höfðatorg-Komplexes, der auf einem Masterplan im Rahmen der Zusammenarbeit von PK Arkitektar und LWW Architekten beruht. Das isländische Büro PK Arkitektar ist für die architektonische Umsetzung des Plans zuständig. Die Buchstaben P und K sind die Initialen des Geschäftsgründers Pálmar Kristmundsson. Bis heute sind erst zwei der sechs Bauvolumen realisiert worden, die jetzt ein gemischtes Angebot an Wohnen, Arbeiten und Entspannen umfassen. Durch den unregelmäßigen Rhythmus schräger Oberflächen auf der ansonsten flachen Fassade ist es PK Arkitektar gelungen, eine lebendige Ausdruckskraft zu schaffen. Einmal abgesehen von der technischen Umsetzung dieser komplizierten Fassade lautete eine der wesentlichsten Fragen, wie den Ansprüchen hinsichtlich Komfort angesichts der isländischen Witterung mit extremen Winden und niedrigen Temperaturen entsprochen werden sollte. Der Architekt wollte ein unterteiltes Sprossensystem mit großen eingefassten Glasflächen im Erdgeschoss. Für den Turm dagegen hatte er strukturelle, versiegelte Glaselemente vorgesehen, die sowohl fest als auch beweglich sein mussten; diese sollten in ein modulares System integriert werden. Ein speziell entwickeltes System auf Grundlage der Elementfassade CW 86-EF sollte eine Lösung gegen die widrigen Wetterbedingungen bieten, die während der Montage erwartet wurden, sodass die Fassade möglichst schnell am Turm montiert werden konnte.

ConceptWall 86 Fassaden - Office building Höfdatorg ansässig in Reykjavik, Island

Die Skyline von Reykjavik

ConceptWall 86 Fassaden - Office building Höfdatorg ansässig in Reykjavik, Island

Ausblick von innen; CW 86-EF Profile

Für die Fassade entwickelte Reynaers vier unterschiedliche, modulare Elemente basierend auf einem 1,5 m breiten und 3,5 m hohen Modul: vollständig fixierte Elemente mit vertikalem Glas; Elemente mit vertikalem Glas und Kippfenstern über die gesamte Breite des Elements; Elemente mit geneigten Glasflächen, entweder fest oder mit Kippfenstern, und Winkelelemente mit einem Winkel von 64 und 116 Grad. Für die stumpfen und spitzen Winkel des Turms wurden Spezialelemente mit nach Maß gefertigten vertikalen T-Profilen hergestellt, sodass der gewünschte optische Eindruck entstand. Um Einheitlichkeit zu erzielen, hat die strukturelle Silikondichtung, mit der das Glas an den Profilen verleimt ist, einen Kontakt zur Silikondichtung zwischen den inneren und äußeren Glasscheiben. Für die geschrägten Glasflächen hat Reynaers ein neues, homogenes Vorhangfassadensystem auf der Grundlage von CW 86-EF entwickelt. Die Fassadenlösung besteht aus einem Hauptrahmen mit den benötigten Strukturelementen, die an der Betonstruktur des Gebäudes befestigt sind. In diesem Rahmen wurde ein fester Glas- oder Kipprahmen zur Unterstützung des Glases angebracht. Sämtliche Kippfenster werden elektrisch bedient; der Motor ist dabei ins System integriert.

ConceptWall 86 Fassaden - Office building Höfdatorg ansässig in Reykjavik, Island

Für die spitzen und stumpfen Winkel des Turms wurden Spezialelemente angefertigt

Für diese Lösung hat Reynaers eine Konstruktion mit einem 250 mm tiefen, thermisch getrennten Außenrahmen mit horizontalen und vertikalen Streben zum Halt der Glasrahmen entwickelt. Das 250 mm tiefe System wurde benötigt, damit eine Festigkeit in Bezug auf die erwarteten hohen Windstärken von bis zu 280 km/h gegeben ist. Die Windlastprüfung bei diesem System mit bis zu 4000 Pa war der höchste Leistungstest, der bislang am Reynaers-Institut durchgeführt wurde. Durch all diese technischen Prüfeinrichtungen war es möglich, sowohl den ästhetischen Ansprüchen des Architekten als auch den technischen und energiespezifischen Anforderungen gerecht zu werden. Das Ergebnis: ein Turm, der in Island seinesgleichen sucht. Während der Finanzkrise wurde Höfðatorg als ein Symbol für die finanzielle Katastrophe betrachtet, die das Land in ihrem Griff hielt. Inzwischen erholt sich die Wirtschaft allerdings allmählich, sodass der Turm jetzt mit einem optimistischeren Blick betrachtet wird. Die Architektur darf unter Berücksichtigung der vielen Herausforderungen, die sich beim Bau des Turms ergeben haben, als großer Erfolg betrachtet werden.

ConceptWall 86 Fassaden - Office building Höfdatorg ansässig in Reykjavik, Island

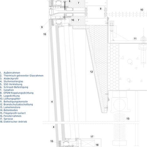
Zeichnung; modularisiertes Element

a - Horizontaler Abschnitt, geneigte Glasfläche

b-b’: Vertikaler Abschnitt mit geneigten Glasflächen

Verwendete Systeme

Beteiligte Akteure

Architect

  • LWW Architekten
  • PK -Arkitektar

Fabricator

  • Gluggar in cooperation with ASF

Fotograf

  • Rafael Pinho

Andere Interessenvertreter

  • Eykt ehf., Reykjavik (General contractors)
  • Hans Ibelings (Authors)